Skip to content
Home
What We Do
Custom Built Homes
Ndis Homes
Multi-Unit Development
Knock Down Rebuild
Dual Occupancy
Renovations & Extension
Sloping Blocks Homes
Home Designs
5th Heaven
Investment Homes
6th Heaven
Custom Homes
7th Heaven
Designer Homes
Featured Work
About Us
Gallery
Contact Us
Home
What We Do
Custom Built Homes
Ndis Homes
Multi-Unit Development
Knock Down Rebuild
Dual Occupancy
Renovations & Extension
Sloping Blocks Homes
Home Designs
5th Heaven
Investment Homes
6th Heaven
Custom Homes
7th Heaven
Designer Homes
Featured Work
About Us
Gallery
Contact Us
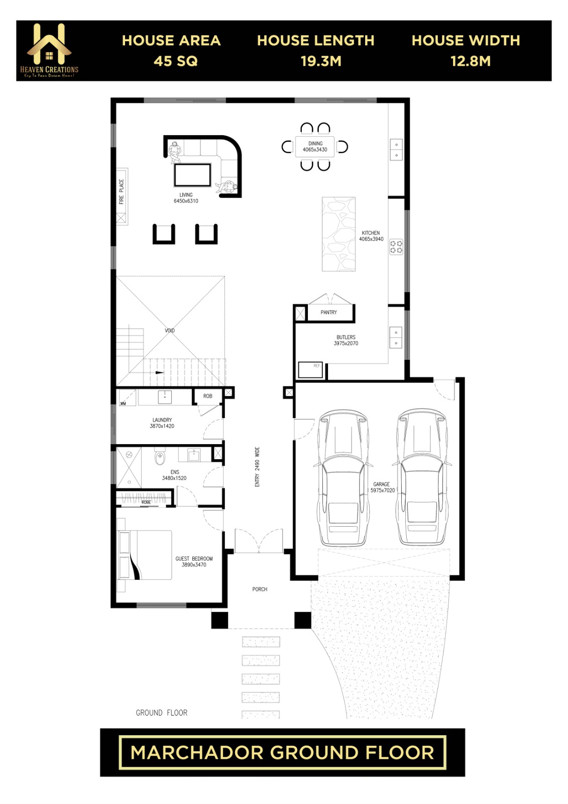
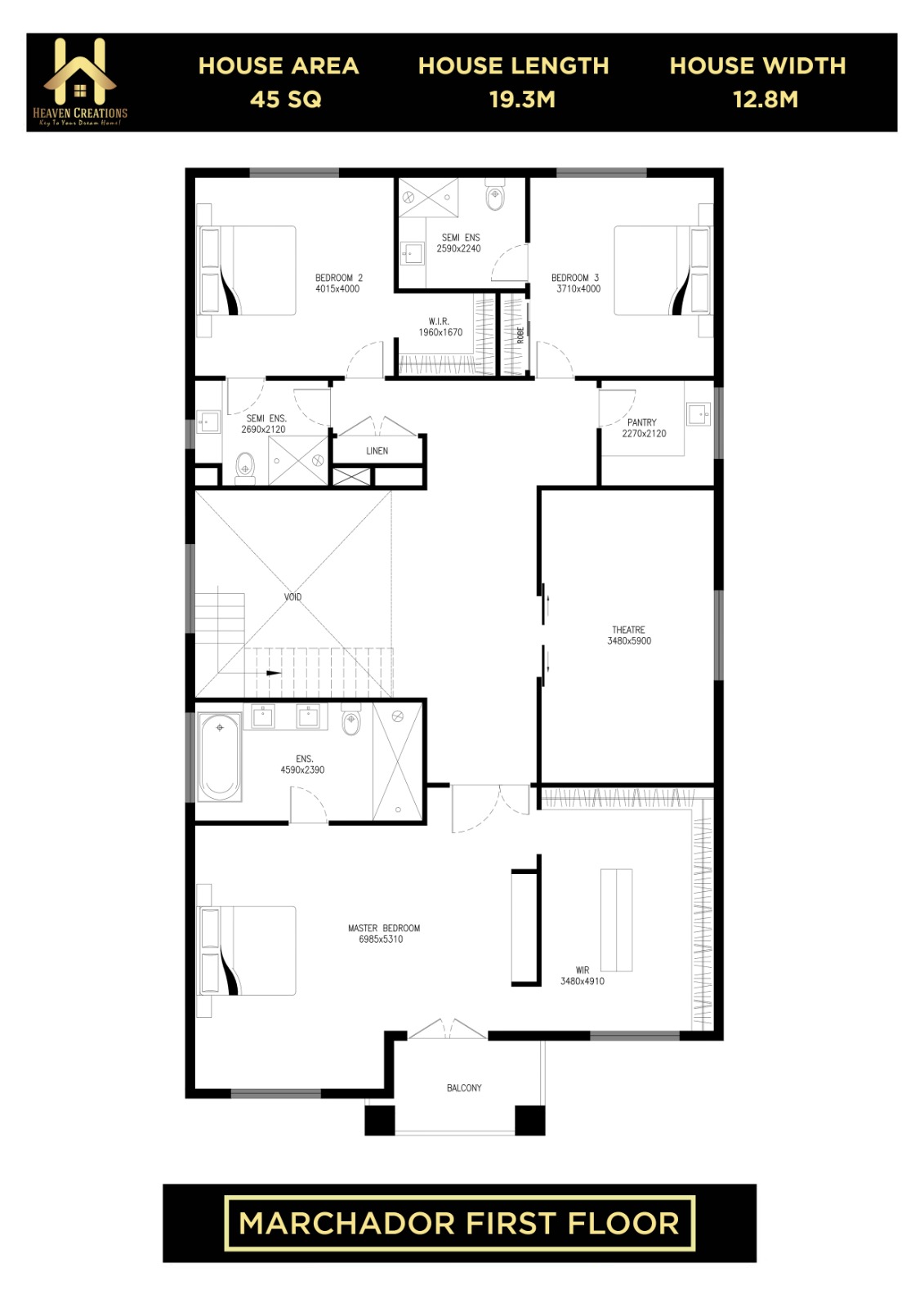
Marchdor
30 m
x
16 m
L x W
5
Bedroom
4
Bathroom
2
Garage
Single Story
Marchdor
The Plan
Check our
Marchdor Plan
Total House Area
44.9 sq
Minimum Lot Length
30 m
Minimum Lot Width
16 m
Parking available
Yes
Marchdor