Skip to content
Home
What We Do
Custom Built Homes
Ndis Homes
Multi-Unit Development
Knock Down Rebuild
Dual Occupancy
Renovations & Extension
Sloping Blocks Homes
Home Designs
5th Heaven
Investment Homes
6th Heaven
Custom Homes
7th Heaven
Designer Homes
Featured Work
About Us
Gallery
Contact Us
Home
What We Do
Custom Built Homes
Ndis Homes
Multi-Unit Development
Knock Down Rebuild
Dual Occupancy
Renovations & Extension
Sloping Blocks Homes
Home Designs
5th Heaven
Investment Homes
6th Heaven
Custom Homes
7th Heaven
Designer Homes
Featured Work
About Us
Gallery
Contact Us
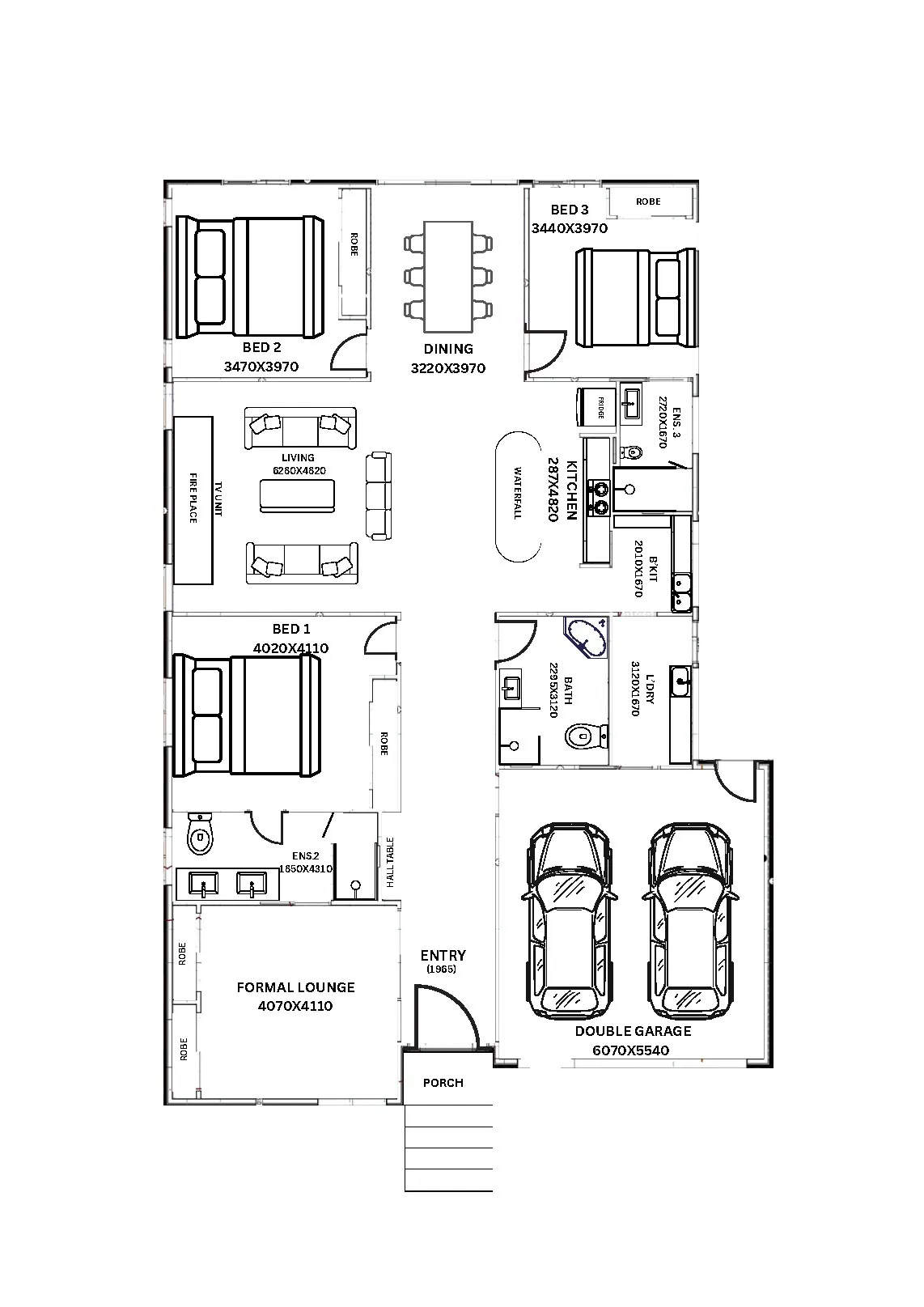
Fusion
x
15 m
L x W
4
Bedroom
2
Bathroom
2
Garage
Double Story
Fusion
The Plan
Check our
Fusion Plan
Minimum Lot Width
15 m
Parking available
Yes
Fusion
Fusion